1. <lsfac class="jnhiclm"></lsfac>


    在线观看91视频,91视频在线观看免费大全,91视频污入口,91视频免费观看视频

    歡迎來到網站

    波動篩

    波動篩

    適用物料:原煤、大塊物料

    價格區間:5-100W

    處理能力:50-460t/h

    產品別名:波動振動篩,礦用波動篩

    波動篩簡介

        BS係列礦用波動篩是火力發電廠輸煤係統的重要設備之一,在冶金、建材、化工、煤炭等係統也可廣為利用。波動篩是由多根平行排列的滾軸組成,一般為6~10根滾軸,多達20根滾軸。滾軸上裝有梅花形篩片。滾軸由電動機和減速器經鏈輪或齒輪帶動滾軸旋轉。轉動方向與物料方向相同。

      奧創機械波動篩出廠操作維護及檢修知識簡介:

      一、工作時,首先開車,然後加入待篩分物料,否則會造成機器損傷,降低機器使用壽命。

        二、在機器使用過程中,每次開機前必須檢查機器內是否存有物料。

        三、應先開機,後給料。停機時,應先停料,後關機。確保停前機器內沒有物料。

        四、禁止帶負荷開機。

        五、每三個月向軸承內部加注潤滑油一次。

        六、機器投入使用後三個月檢修一次。

        七、當篩片受損嚴重後,不能達到篩分目的時,應及時更換新的篩片

      波動篩未來應用須知:

      隨著經濟的快速發展,現代工業的大型化係統化,科技日益更新,人們對礦石的需求量也越來越大。但同時,由於礦產的過度開發使得岩石趨向低品質化。為此,針對這種易碎裂,抗壓強度中等的礦材,需要一種適合的篩分機篩分。波動篩無論其功能還是工作的穩定性和效率,都是不二的選擇。它將會是未來水泥礦石等礦業篩分體係的主流設備。在確保篩分效率和篩機工作性能的同時追求大型化和係列化也是一個重要的發展方向。


    波動篩原理

      波動篩是由數片並列的特製桃形篩片組成的篩孔與幾排轉子(篩片與軸組成)形成篩麵,各轉子以同速、同向做周向旋轉,在其作用下,篩麵上的物料借助於桃形篩片交織回轉,年夜塊物料被撥騰起來,並經篩麵到碎煤機破碎,小粒徑物料則經篩孔直接落下,從而到達篩分的目的。為了獲得軸向及縱向的波動,提高篩分效率,安裝時統一軸上相鄰的兩篩片在徑向錯開一等位角(15°、30°或45°),相鄰兩軸上的篩片位置則以交織的形式排列。

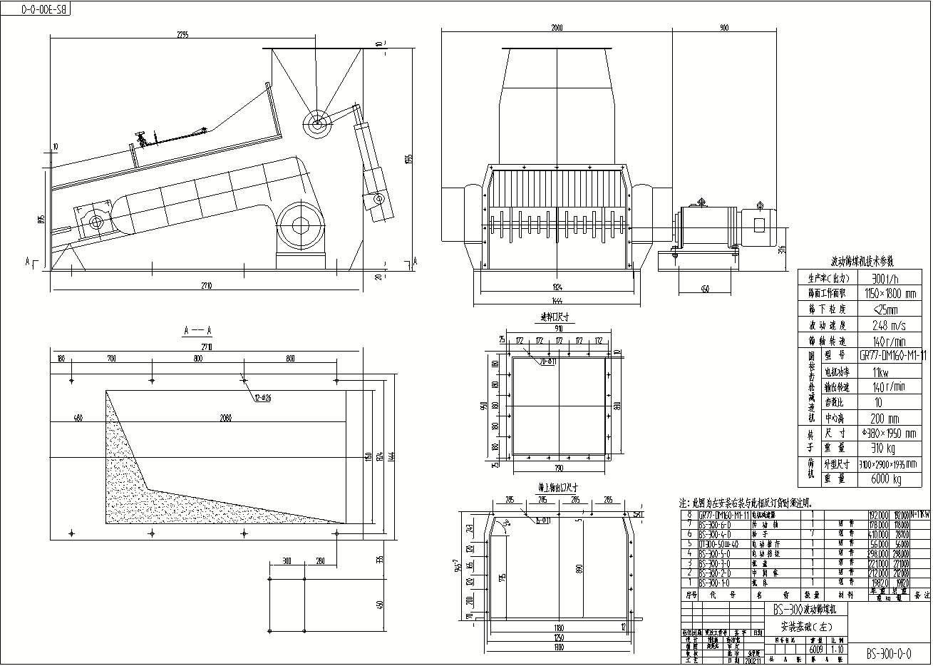
    波動篩結構圖紙





    波動篩參數

    型 號
    BS-100
    BS-200
    BS-300
    BS-500
    BS-700
    BS-1000
    BS-1400
    出 力(t/h)
    100
    200
    300
    500
    700
    1000
    1400
    軸 數
    6
    7
    7
    8
    9
    11
    11
    篩孔尺寸(mm)
    40x 100
    40x130
    40x130
    40x130
    40x130
    40x130
    40x130
    篩分效率(%)
    90
    90
    90
    90
    90
    90
    90
    篩軸轉速(r/min)
    140
    140
    140
    140
    140
    140
    140
    電機功率(Kw)
    3.0
    5.5
    7.5
    11
    11
    15
    22
    電動推杆
    型 號
    手 動
    DT300-50- 40
    DT300-50- 40
    DT500-50- 40
    DT500-50- 40
    DT500-50- 40
    DT500-50- 40
    功 率(Kw)
     
    0.37
    0.37
    0.55
    0.55
    0.55
    0.55
    推 力(Kg)
     
    300
    300
    500
    500
    500
    500
    行 程(mm)
     
    500
    500
    500
    500
    500
    500
    外形尺寸(長x 寬x高)(mm)
    2655x 2250x 1400
    3100x 2550x 1935
    3100x 2900x 1935
    3400x 3000x 2050
    3800x 3100x 2150
    4200x 3100x 2250
    4500x 3100x 2250
    質 量(Kg)
    3500
    5100
    6000
    6500
    7100
    9820
    11800

    波動篩圖片

    上一個: 弛張篩 下一個: 振網篩
    產品分類
    輕型精細篩分機
    重型礦用振動篩
    輸送機械
    提升機械
    給料機械
    振動電機
    配件及其他設備
    產品推薦
    平麵回轉篩
    刮板輸送機
    Z型提升機
    YK係列圓振動篩
    91视频污入口
    往複式給煤機
    聯係在线观看91视频
    Tel/Fax:0373-2495788
    聯係人:苗經理 13782587121
    張濤 13569837649
    郵箱:13782587121@126.com
    地址:新鄉市七裏營鎮南魏莊工業園3號
    微信更方便
    微信更方便
    網站地圖